功能介绍
剖面视图在项目浏览器中;剖面视图与模型中的剖面标记关联;每当在模型视图上用剖面工具创建一个剖面,项目浏览器中将会增加一个剖面标记条目。
使用说明
操作步骤
剖面图的创建与剖面符号的创建方式一致:
- 单机【建模】菜单下的【剖面图】按钮,启动命令。(见图1)
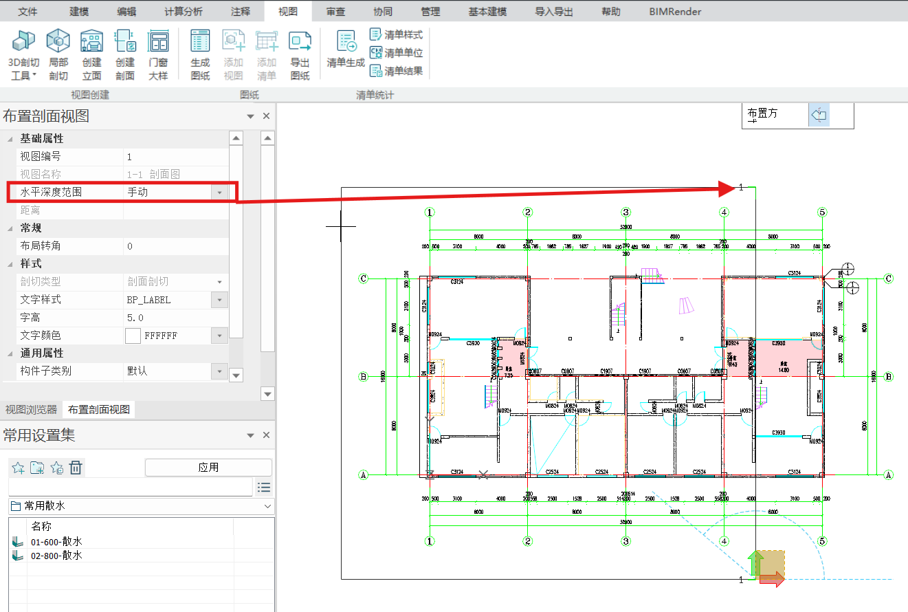
- 在【属性栏中】选择水平深度范围【手动】/【无限】(见图2):【无限】表示剖视方向下的所有构件可见,【手动】表示在后续的绘制中,第三点选择即为水平深度范围,剖面视图下仅在范围内的构件会被显示。

图1 剖面图

图2 水平深度范围
剖面符号属性
- <视图编号>:控制平面图中剖面符号的序号为”X”,同时控制剖面视图的名称为”X-X剖面图”。
- <视图名称>:对应剖面视图的名称,可作为参考,不可编辑。
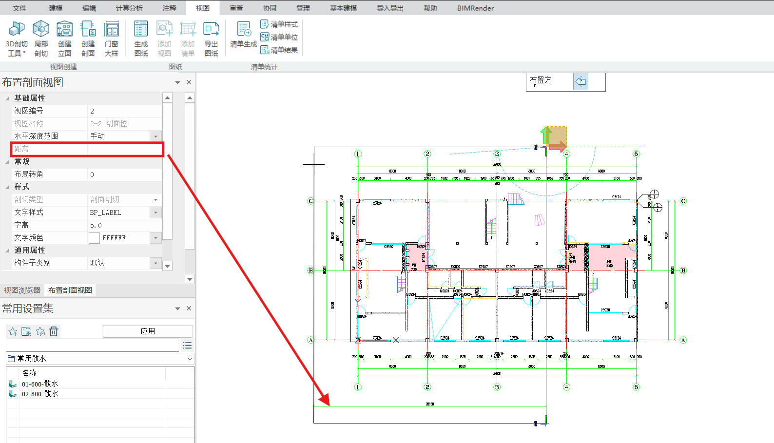
- <水平深度范围>:可在绘制前后选择【手动】/【无限】,【无限】表示剖视方向下的所有构件可见,【手动】表示剖面视图下,仅在此范围内的构件会被显示。
- <距离>:表示水平深度范围的距离值。(见图3)

图3 水平深度距离
- <图层>:可下拉选择剖切符号所在的图层。
- <布局转角>:控制标注中文字的默认旋转角度。
- <文字样式>:控制文字样式,可下拉选择。
- <字高>:控制文字高度。
- <文字颜色>:控制文字颜色。
剖面符号的编辑
- 点击转折夹点,可调整剖切符号的两侧位置,联动剖面图在水平方向的左右宽度范围。(见图4)
- 点击文字夹点,可调整文字位置,移动至剖切线另一侧时,剖视方向自动切换至反方向。此操作会联动剖面图的剖视方向。(见图5)
- 双击文字夹点,可快捷修改视图编号。
- 点击范围框夹点,可控制范围框的水平深度范围,联动剖面图的水平可视深度,仅在范围框内的构件可见。(见图6)

图4 水平宽度夹点

图5 文字夹点

图6 范围框夹点
剖面视图跳转
- 切换剖面视图:双击项目浏览器中剖面视图名称【1-1剖面图】,如图7,工作区视图切换到2-2剖面视图;
- 双击平面视图中的剖面标记会自动打开剖面符号关联的剖面视图。

图7 项目浏览器剖面图
剖面图面视图操作
鼠标左键点击要操作的剖面视图名称,点击右键弹出如下所示对话框,如图;
图8 剖面图右键菜单
- <打开立面图>:打开当前选中的剖面图视图;
- <刷新立面图>:刷新当前选中的剖面图视图;
- <创建立面图>:创建新的剖面视图,等于激活剖面图工具;
- <复制视图>:复制当前选中的剖面图视图;
- <重命名立面图>:重命名当前剖面视图;如图。
- <删除立面图>:删除当前选中剖面视图;
- <生成图纸>:跳转到生成图纸界面;
- <新建视口>:创建当前选中的剖面图新视口。