3.5.3 墙自由拆分
点击“墙自由拆分”按钮弹出墙拆分相关的工具条,如下图所示。

该工具条启动后一直显示在窗口中,直到用户点击最右侧的关闭按钮,关闭该工具条。
工具条上每个小图标代表一个操作命令,点击图标开始执行命令。
注意:1、现浇段暂不支持放置到洞口/连梁范围内;
2、预制剪力墙可以覆盖完整的洞口/连梁,暂不支持预制剪力墙端部节点出现在洞口/连梁长度范围内。
自动生成现浇段
点击图标
,启动自动生成现浇段命令。
现浇节点对话框
根据《装配式混凝土结构技术规程》(JGJ 1-2014)第8.3.1条,楼层内相邻预制剪力墙之间应采用整体式接缝连接,且应符合下列规定: 当接缝位于纵横墙交接处的约束边缘构件区域时,约束边缘构件的阴影区域(图8.3.1-1)宜全部采用后浇混凝土,并应在后浇段内设置封闭箍筋; 当接缝位于纵横墙交接处的构造边缘构件区域时,构造边缘构件宜全部采用后浇混凝土;当仅在一面墙上设置后浇段时,后浇段的长度不宜小于300mm。可根据规范要求对现浇节点相关参数在对话框中设置,详解如下:

①设置生成现浇节点尺寸,输入值为墙内边尺寸;
②纵横墙交接处形式,提供T字形和一字型两种形式的节点;
③生成节点的方式有两种,一种是打开对话框后,框选需要生产节点的构件;二是点击快速生成,形成当前层的现浇节点,如下图所示。

修改现浇节点
“显示墙洞”—勾选此项,可以在模型中显示墙洞位置,如下图所示; 
“显示现浇节点尺寸”—勾选此项,可以在模型中显示现浇节点的尺寸,如下图所示;
“修改”—点击修改,可以对生成的现浇节点进行尺寸修改,修改步骤如下图所示;
“调整”—点击调整,可以对预制墙之间的现浇部分以及一字型墙端部形成现浇节点,如下图所示;

现浇节点配筋
切换现浇节点顶部的页签至配筋设计页,如下图所示,可以设置现浇节点的配筋相关参数,保护层厚度、水平筋参数、竖直筋参数、拉筋参数等,点击快速配筋,完成当前自然层已生成现浇节点的配筋设计。

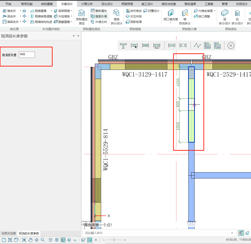
单点布置现浇段
点击图标
,启动单点布置现浇段命令。左侧栏显示布置的现浇段长度,将鼠标移动到剪力墙上时弹出现浇段在墙上定位尺寸,在墙上合适位置点击鼠标放置现浇段。

两点布置现浇段
点击图标
,启动两点布置现浇段命令。将鼠标移动到剪力墙上时,显示鼠标所在位置标注,命令行提示“点击第一点”;在合适位置点击第一点后,命令行提示“点击第二点”,墙上临时标注标注第二点位置和即将形成的现浇段长度,在合适位置点击第二点后,生成现浇段。
预制墙间自动生成现浇段
点击图标
,启动预制墙间自动生成现浇段命令。程序会搜索显示范围内位于同一片剪力墙上的预制墙,并在预制墙之间自动生成现浇段。
现浇段修改
选中墙体中用于连接多段预制剪力墙的一字型现浇段,弹出现浇段原位修改显示。如下图所示:
*支持修改墙肢尺寸,精准控制拆分段划分;
*支持以原位尺寸的方式修改现浇段尺寸,通过箭头控制调整方向。
两点绘制预制墙
点击图标
,启动两点绘制预制墙。左侧弹出预制墙设计参数,命令行提示“点击第一点”,鼠标放到指定了预制属性的剪力墙上时,出现第一点的临时定位标注;在合适位置点击第一点,命令行提示“点击第二点”,墙体范围内移动鼠标临时尺寸标注到第二点的距离和第二点的定位尺寸,在合适位置点击第二点自动根据墙体的预制属性生成预制墙。

左侧弹框如下:

左侧弹框
基本参数
- 外墙类型
提供【夹心保温】和【无保温】两个选项。两种类型墙样式如下:
- 混凝土强度等级
预制楼板的混凝土强度等级,通过下拉框设置。
【同主体结构】:预制板强度等级读取结构楼板的混凝土强度等级。
【C15-C80】:预制板的混凝土强度等级,其具体含义参考《混凝土结构设计规范》。
此参数影响配筋时的锚固长度计算。 - 保温层厚度
可以手动输入【保温层厚度】; - 外叶板厚度
可以手动输入【外叶板厚度】; - 接缝设置
可以手动输入预制墙顶现浇层高度及板底接缝高度;
勾选【自适应板厚】时,预制墙顶部现浇高度取【板厚+e1】,e1为楼板底部与预制墙顶高差。
不勾选【自适应板厚】时,预制墙顶部现浇层高度取用户手动输入的值。
勾选【按最低板拆分】时,预制墙墙身两侧板厚或者标高不同时将按最低板计算标高拆分
拆分参数
- 预制墙最大宽度
两点布置预制墙模式,预制墙最大宽度参数无效。 - 内叶墙板接缝宽度、洞口侧预留墙肢宽度
两点布置预制墙模式,内页墙板接缝宽度和洞口侧预留墙肢宽度参数无效。构造参数
- 墙侧面做法
用户可以选择墙侧面做法为“抗剪键槽”与“粗糙面”,该选项为复选框,用户可以同时选择。
其中粗糙面不会在模型中表现出来,仅能在属性和图纸中表达。 - 设置左右侧面倒角
当勾选“设置左右侧面倒角”时,可手动输入倒角尺寸。
三明治预制外墙的左右侧倒角只能在内侧生成,无保温外墙和预制剪力内墙的倒角在左右侧和内外侧全部可以生成。 - 保温层封边部位
当选择“夹心保温”时,用户可以设置保温层的封边,可以分别对“上”“下”“左右”进行封边设置。
当勾选设置保温层封边时,可以在“封边宽度”参数中,对封边宽度进行设置。
该参数仅对【夹心保温】外墙生效。 - 外叶板企口
可以对外叶板企口进行设置,可以分别勾选“上企口”和“下企口”,当勾选其中一个时,外叶板只设置勾选的企口。
该参数仅对【夹心保温】外墙生效。 - 外墙翻边
当墙类型为【夹心保温】时,无论翻边参数如何设置,翻边参数均不生效。
当墙类型为【无保温】且翻边设置为【左(上)侧设置】或【右(下)侧设置】时,在墙外侧生成翻边。
当墙类型为【预制剪力内墙】时,按照翻边设置生成翻边。

拆分形成预制墙
点击图标
,启动【拆分形成预制墙】命令。左侧弹出【墙拆分对话框】,鼠标放到指定了预制属性的墙上,在现浇段之间按照一定的拆分规则形成拆分预览,点击鼠标形成预制墙。该功能支持框选。
左侧弹框如下:

左侧弹框
基本参数
- 外墙类型
提供【夹心保温】和【无保温】两个选项。两种类型墙样式如下:
- 混凝土强度等级
预制楼板的混凝土强度等级,通过下拉框设置。
【同主体结构】:预制板强度等级读取结构楼板的混凝土强度等级。
【C15-C80】:预制板的混凝土强度等级,其具体含义参考《混凝土结构设计规范》。
此参数影响配筋时的锚固长度计算。 - 保温层厚度
可以手动输入【保温层厚度】; - 外叶板厚度
可以手动输入【外叶板厚度】; - 接缝设置
可以手动输入预制墙顶现浇层高度及板底接缝高度;
勾选【自适应板厚】时,预制墙顶部现浇高度取【板厚+e1】,e1为楼板底部与预制墙顶高差。
不勾选【自适应板厚】时,预制墙顶部现浇层高度取用户手动输入的值。
勾选【按最低板拆分】时,预制墙墙身两侧板厚或者标高不同时将按最低板计算标高拆分 ### 拆分参数 - 预制墙最大宽度
可以手动输入【预制墙最大宽度】,程序自动判断两个相邻现浇段之间的尺寸,当现浇段之间尺寸小于等于【预制墙最大宽度】时,自动拆分为一道预制剪力墙。
当现浇段之间尺寸大于【预制墙最大宽度】时,将墙拆分为多段,拆分逻辑参考【内叶墙板接缝宽度】【洞口侧预留墙肢宽度】部分。 - 内叶墙板接缝宽度、洞口侧预留墙肢宽度
当相邻两个现浇节点之间的尺寸大于【预制墙最大宽度】时,程序自动将该片墙拆分为多个,多个预制墙之间的现浇宽度取值为【内叶墙板接缝宽度】。当该墙存在洞口时,程序将自动在洞口边预留一段预制墙柱,墙柱的宽度取值为【洞口侧预留墙肢宽度】。
构造参数
- 墙侧面做法
用户可以选择墙侧面做法为“抗剪键槽”与“粗糙面”,该选项为复选框,用户可以同时选择。
其中粗糙面不会在模型中表现出来,仅能在属性和图纸中表达。 - 设置左右侧面倒角
当勾选“设置左右侧面倒角”时,可手动输入倒角尺寸。
三明治预制外墙的左右侧倒角只能在内侧生成,无保温外墙和预制剪力内墙的倒角在左右侧和内外侧全部可以生成。 - 保温层封边部位
当选择“夹心保温”时,用户可以设置保温层的封边,可以分别对“上”“下”“左右”进行封边设置。
当勾选设置保温层封边时,可以在“封边宽度”参数中,对封边宽度进行设置。
该参数仅对【夹心保温】外墙生效。 - 外叶板企口
可以对外叶板企口进行设置,可以分别勾选“上企口”和“下企口”,当勾选其中一个时,外叶板只设置勾选的企口。
该参数仅对【夹心保温】外墙生效。 - 外墙翻边
当墙类型为【夹心保温】时,无论翻边参数如何设置,翻边参数均不生效。
当墙类型为【无保温】且翻边设置为【左(上)侧设置】或【右(下)侧设置】时,在墙外侧生成翻边。
当墙类型为【预制剪力内墙】时,按照翻边设置生成翻边。

连续绘制PCF墙
点击图标
,激活连续绘制PCF墙命令,左侧弹出【PCF墙设置】对话框,调好参数后,在操作窗口中平面内连续点击布置生成PCF墙。
【PCF墙设置】对话框如下图所示:

PCF墙参数
- 外页墙厚度
控制PCF墙【外页墙厚度】,支持用户手动录入。 - 保温层厚度
控制PCF墙【保温层厚度】,支持用户手动录入。 - 参考线
提供【保温层内边】一个选项,表示生成的PCF墙总是【保温层内边】接近【参考线】,【参考线】是指鼠标绘制的路径,该路径存在方向属性。 - 外侧位于
PCF墙位于【参考线】行进方向的左/右侧PCF墙高
- PCF墙高度
【PCF墙高度】参数提供了【关联层高】选项。 - 参数
选择此项时,通过【PCF墙外页顶部偏移h1】和【PCF墙外页底部偏移h2】控制外页墙高,外页墙高 = 层高 - h1 - h2;
【保温高度】通过【相对外页顶部偏移h3】和【相对外页底部偏移h4】控制,【保温层高】 = 【外页墙高】 - h3 - h4。外页构造参数
【上企口】和【下企口】复选框控制外页板上部和下部企口是否生成。
【a1】【b1】【c1】【a2】【b2】【c2】控制企口细部参数。阳角PCF墙补充
点击图标
,激活【阳角PCF补充】命令,左侧弹出对话框,调整参数,选择需要调整的阳角节点。
【阳角PCF补充】对话框如下图所示:
接缝尺寸
- 厚度同PCF墙控制参数
复选框,当勾选时,本命令补充的PCF墙外叶墙和保温层厚度同【连续绘制PCF墙】参数相同,同时本页面上参数置灰,显示关联的参数值,且不可修改。 - 外页墙厚度
控制PCF墙【外页墙厚度】,支持用户手动录入。 - 保温层厚度
控制PCF墙【保温层厚度】,支持用户手动录入。 - 外叶墙缩进
外叶墙缩进输入框见下图,其中C1表示与所选现浇节点关联的外叶墙板相对现浇节点边缩进的距离,C2表示补充的PCF墙外叶墙相对现浇节点边的缩进距离。

- PCF端保温外伸
补充的PCF端保温层相对外页板的尺寸,外伸为正,内缩为负。 - 墙端保温延伸
处理的预制剪力墙端保温层相对外页板的尺寸,外伸为正,内缩为负。PCF墙高
高度同PCF墙布置参数
复选框,当勾选时,本命令补充的PCF墙墙高参数同【连续绘制PCF墙】参数相同,同时本页面上参数置灰,显示关联的参数值,且不可修改。PCF墙高度
【PCF墙高度】参数提供了【关联层高】选项。参数
选择此项时,通过【PCF墙外页顶部偏移h1】和【PCF墙外页底部偏移h2】控制外页墙高,外页墙高 = 层高 - h1 - h2;
【保温高度】通过【相对外页顶部偏移h3】和【相对外页底部偏移h4】控制,【保温层高】 = 【外页墙高】 - h3 - h4。外页构造参数
- 企口同PCF墙布置参数
复选框,当勾选时,本命令补充的PCF墙企口参数同【连续绘制PCF墙】参数相同,同时本页面上参数置灰,显示关联的参数值,且不可修改。 - 企口参数
【上企口】和【下企口】复选框控制外页板上部和下部企口是否生成。
【a1】【b1】【c1】【a2】【b2】【c2】控制企口细部参数。节点处外叶和保温调整
点击图标
,激活【节点处外叶和保温调整】命令,左侧弹出对话框,调整参数,选择需要调整的阳角/阴角节点。
对话框如下图所示:

阳角节点
- 处理方式
提供【水平避让竖直】、【竖直避让水平】、【参考节点边】和【不处理】四种方式。
【水平避让竖直】:竖直墙外叶墙延伸到水平墙外叶墙外表面,通过控制水平墙外叶墙端部到竖直墙外叶墙内侧间距f1、竖直墙保温到水平墙外叶墙内表面的间距f2以及水平墙保温端部到竖直墙保温内侧间距生成阳角节点。

【竖直避让水平】:水平墙外叶墙延伸到竖直墙外叶墙外表面,通过控制竖直墙外叶墙端部到水平墙外叶墙内侧间距f1、水平墙保温到竖直墙外叶墙内表面的间距f2以及竖直墙保温端部到水平墙保温内侧间距生成阳角节点。

【参考节点边】:通过控制竖直墙外叶墙和保温端部到阳角水平边的距离w1、b1以及水平墙外叶墙和保温层端部到阳角竖直边距离w2、b2,调整与阳角相关联的预制剪力墙。

【不处理】:保持不变,选择不生效
### 阴角节点 - 处理方式
提供【水平避让竖直】、【竖直避让水平】、【参考节点边】和【不处理】四种方式。
【水平避让竖直】:通过控制水平墙外叶墙端部到竖直墙外叶墙外表面距离f1、竖直墙外叶墙延伸到水平墙保温层外表面距离f2,水平墙保温层端部到竖直墙保温层外侧间距f3、竖直墙保温到水平墙内叶墙外表面间距f4调整阴角节点处尺寸。

【竖直避让水平】:通过控制竖直墙外叶墙端部到水平墙外叶墙外表面距离f1、水平墙外叶墙延伸到竖直墙保温层外表面距离f2,竖直墙保温层端部到水平墙保温层外侧间距f3、水平墙保温到竖直墙内叶墙外表面间距f4调整阴角节点处尺寸。

【参考节点边】:通过控制竖直墙外叶墙和保温端部到阳角水平边的距离w1、b1以及水平墙外叶墙和保温层端部到阳角竖直边距离w2、b2,调整与阳角相关联的预制剪力墙。

【不处理】:保持不变,选择不生效